香溪 胡家坪遗产村落
设计阶段:方案设计
社区中心建筑面积:987 平方米
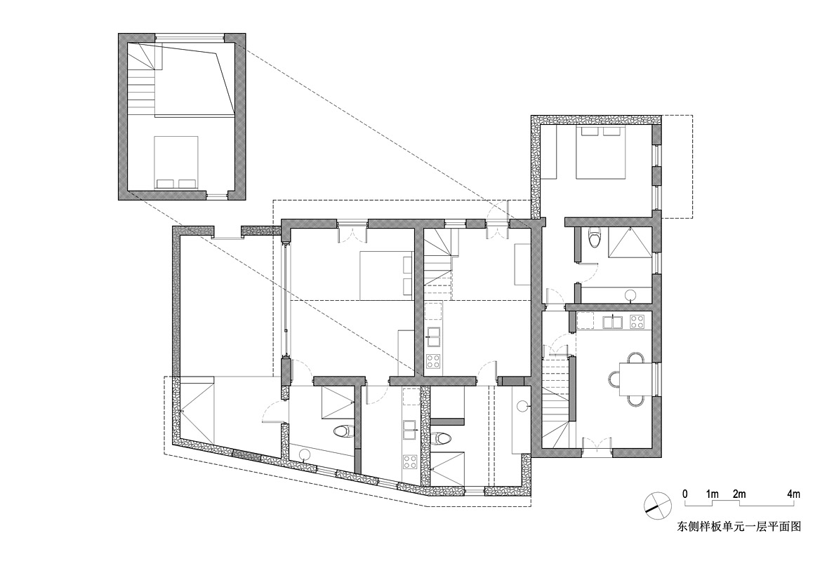
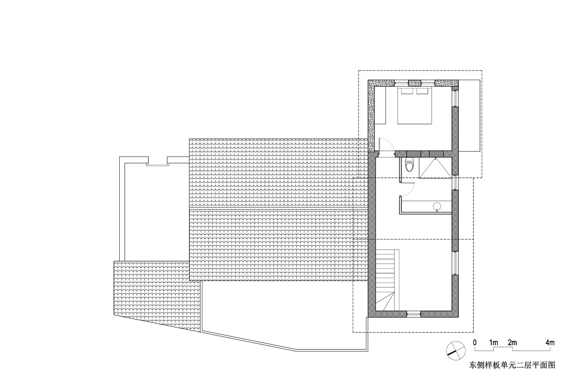
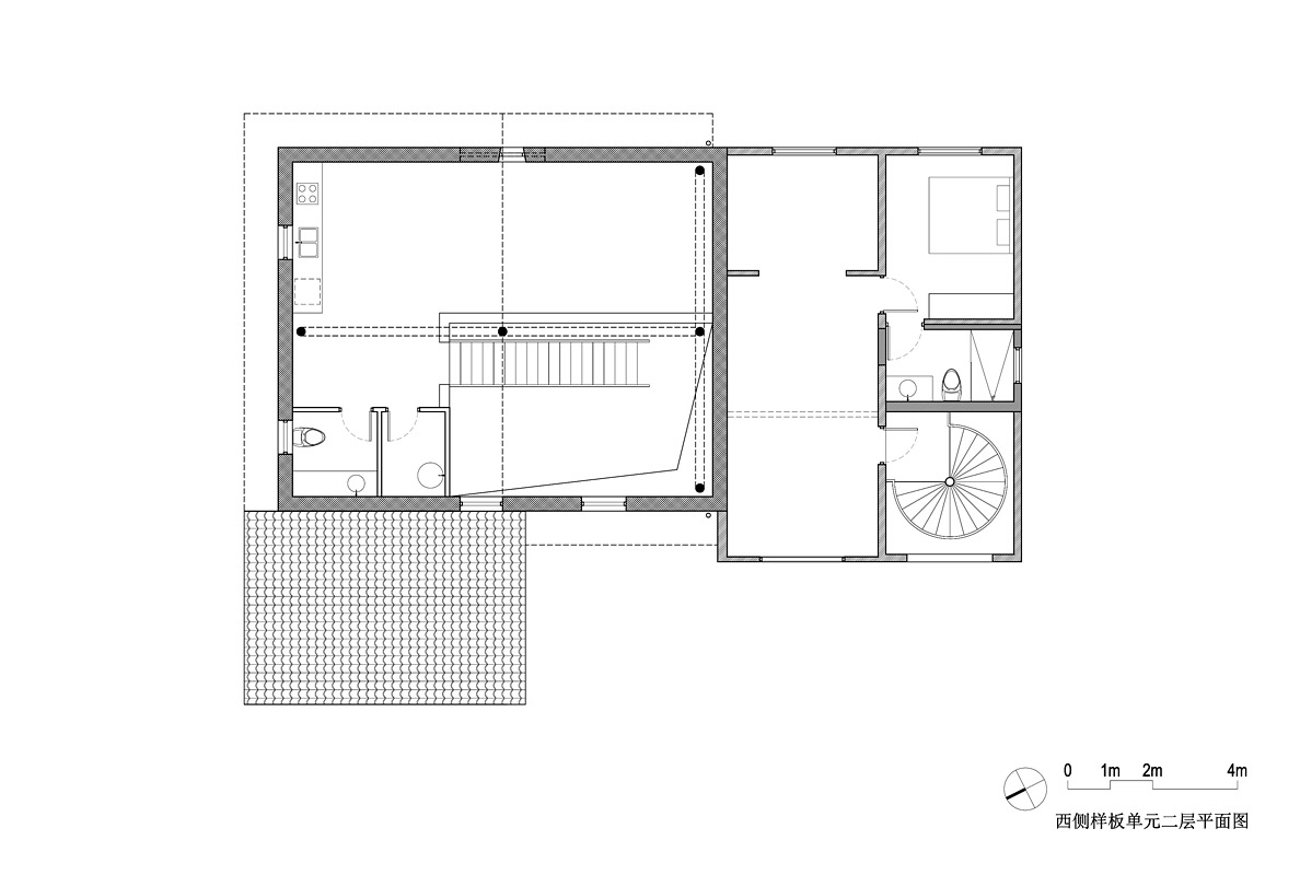
样板单元建筑面积:526 平方米
总建筑面积:1,513 平方米
项目地点:湖北省宜昌市秭归县归州镇
项目委托:湖北子归文化旅游投资开发有限公司
设计公司:萨洋设计 & 在场建筑
设计师: 萨洋 & 钟文凯
设计团队:孙晓倩 符永鑫 荀曜 李斐 张梦瑶
摄影图片:© 在场建筑 & China Bound Ltd. 2018
设计阶段:方案设计
社区中心建筑面积:987 平方米
样板单元建筑面积:526 平方米
总建筑面积:1,513 平方米
项目地点:湖北省宜昌市秭归县归州镇
项目委托:湖北子归文化旅游投资开发有限公司
设计公司:萨洋设计 & 在场建筑
设计师: 萨洋 & 钟文凯
设计团队:孙晓倩 符永鑫 荀曜 李斐 张梦瑶
摄影图片:© 在场建筑 & China Bound Ltd. 2018






























