淘乐思幼儿园 红院子
建成时间:2011年9月
基地面积:2986平方米
建筑面积:1507平方米
项目委托:淘乐思幼儿园
设计团队:刘宏伟 李楠 张弘 高星 张义海
北京通州
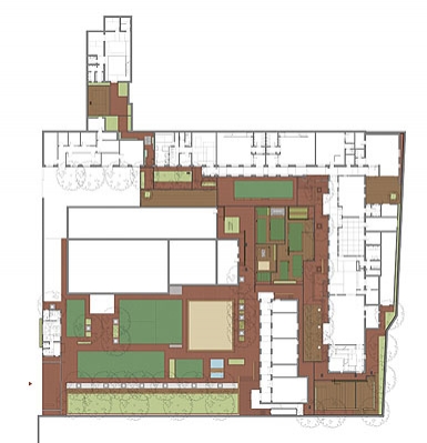
淘乐思幼儿园红院子改建自一组L形布局、砖混构造的平房,周边环绕着高大的梧桐和杨树。原来是一个小型工厂,建筑的维护状态很差,狭小的窗户使内部的采光不足,与L形建筑所形成的院落在视线上的联系很受限制。业主希望我们把它改建成淘乐思幼儿园的幼教中心。虽然是一幅破旧失修的景象,现场同时也蕴涵着令人触动的因素。L形建筑与一系列大小不等的庭园所构成的户外空间相互交织,就连重复性的窗洞也呈现出一种简单而优美的韵律,而砖这种材料又为之增添了细腻丰富的感觉。我们从中意识到有机会重新植入一个新的内部空间,并重建室内外的联系,使之产生更多的互动。
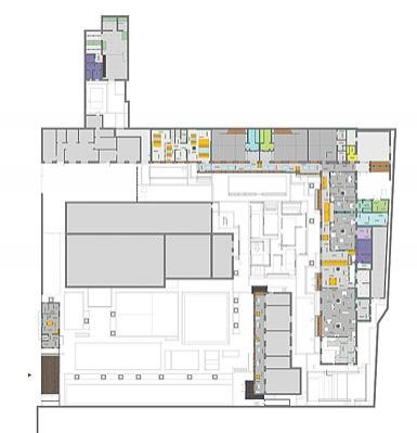
尽管室内空间的功能各种各样,而设计必须满足功能性的需求,我们一直寻求在空间之间建立起一种更本质的联系。在室内隔墙、天花以及夹层楼板开出来不同尺寸的洞口,演绎出窗、门和天窗,再嵌入透明或半透明的玻璃或深色的镜面。外墙上的窗被扩展到更低的标高,与孩子的身高相匹配。其中的两个被加到更大的尺寸并凸出去,变成阅读或群体游戏的空间。建筑,以及内部的房间变得具有视线和光线上的穿透性。洞口的侧边涂以多种颜色,来把室内渲染得更加富于色彩,这种效果因为玻璃和镜面的反射演化得更加复杂。
建筑的现状作为时间的记录被小心地对待,特别是承重砖墙和钢结构桁架。我们把它们和新添加的元素混合起来,而没有试图去隐藏。桁架的杆件从巨大的天窗中间穿过本身就非常诗意。对现有建筑最大的动作是在北侧加建了一条宽敞的走廊,以便能达到教室面积的规定。新的北立面遵循了东侧立面的形式规则。
户外空间重新组织成一系列的有主题的庭院,其中比较重要的是儿童的迷宫和剧场。户外场所使用的材料主要是砖、木材和钢,来传承现场的场所属性。我们相信它们能够潜移潜移默化地向孩子传达那种时间的厚度和世界的真实性。






























