深圳市档案中心方案
基地面积:18518平方米
建筑面积:126248平方米
中国深圳
深圳市档案中心新址位于深圳市梅林中康片区,做为深圳市提升城市机能的支撑点,档案中心储备着深圳市的主体信息资源,方案在用地规划、功能布局、空间形态、科技应用以及景观环境的等各个环节体现档案存储的高效性,档案管理的科学性以及档案使用的开放性,体现出“档案资源服务于社会”的人本理念。
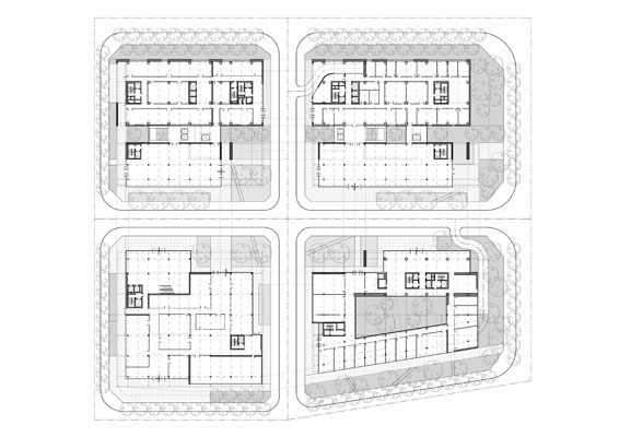
用地规划
与档案馆档案存储、技术管理及查询服务有关的机能布置在东北地块,与进驻单位档案存储、技术管理及查询服务有关的机能布置在西北地块。而在东南地块综合性地布置方志馆所属空间及档案馆行政办公。在用地的四个地块之中,西南地块朝向规划中城市公共绿地,最具有公共性与开放性,布置了对外商业及一系列对公众开放展览空间。
竖向关系
根据规划条件及项目具体功能关系,方案将以档案为主体的存储空间设在高层部分,将以人为主体的业务技术工作、对外服务空间及行政办公设在群房部分。群房的下层部分交通便利,利用地块的自然划分,分别形成档案中心几个主要功能组团;上层部分将档案馆及方志馆的对外展览空间整合为跨越四个地块的流动空间。体量关系准确合理地反应了档案存储、档案业务技术与对外服务三者之间的密切联系。
建筑设计策略
秉承开放性档案服务理念,积极建立档案中心与周边城市空间的有机联系,体量关系整体上形成相西南方向开放的态势。
群房部分:
下层空间具有渗透性,层次丰富;上层空间具有连贯性,视觉向周边延伸,形成悬浮在空中的全景式公共活动平台。
商业空间具有充分的穿透性,在公共绿地与户外庭园之间遥相呼应。
档案服务空间视觉通透,与户外庭园景观相互渗透,形成园林式的公共环境;
公共展览空间既控制直射光线又保持视线与周边景观的联系,形成悬浮在整个地块之上半透明体,为下边的户外公共空间提供遮蔽,在深圳的气候条件下极大地提升了对户外活动空间的舒适性,中间的水景庭园进一步自然光引入到展览空间内部;
行政办公空间围绕内庭院自成一体,与公共空间相对分开。
档案业务及技术办公与档案储存、档案服务关系密切,流线紧凑。光环境以北向为主,通过竖向百叶遮蔽直射光。
高层部分:
档案存储空间通过墙体设计严格控制光照条件,强调空间的永久性防护性能,体现出厚重累积的视觉意向。
方志馆储藏空间对于档案中心具有极强的象征意义,深圳市的城市历史就浓缩在这个坚实而前瞻的形体中。东西及南侧以实墙为主并覆盖压延锌板,南侧立面向前倾斜,表面压延锌板嵌入了LED杆件,形成巨大的屏幕,做为档案中心面向社会的窗口给城市空间带来多彩的活力。
材料及细节设计
建筑材料及细节设计进一步深化完善设计策略,契合空间内在使用功能,实践节能环保理念:
档案存储空间,南向以实墙为主,少量开窗以补充自然采光,形成南北相通的自然通风条件。东西方向完全为实墙面,减少能耗,保护藏品。档案库房北向采光,设计竖向外墙百叶,使档案存储空间完全避免东西方向直射光。同样的思路也应用在档案业务及技术服务空间的设计中,作为工作空间,北侧外墙百叶设计与档案存储空间相比较为疏朗,在满足遮断东西直射光的条件下增强视线通透性。
实墙面部分采用了经过预钝化处理的锌板幕墙,锌在自然环境中非常稳定,具有永久免维护以及自我修护能力。在物理性能方面为档案空间提供了恒久的保护,其永不变形褪色的特点非常符合档案中心的社会形象。
群房上层公共空间朝外的外墙采用EZV压延锌板做为遮阳控制系统,利用压延锌板的“微遮阳”性能,既遮蔽阳光又能够保证视线的穿透性。屋面覆盖,局部起翘形成放置光电板的基面,起翘部分之下是展览空间天窗。
屋面和地面设计雨水回收处理系统,回灌用地内的景观绿地。屋顶的光电板生产的电能可以供应景观照明。
立体交通
交通及流线组织依据功能关系,清晰明确。地块中间东西向道路做为主线衔接社会交通,停车以地下车库为主,将地面空间做为景观资源留给公众。工作流线及车库出入口延用地地北侧和东侧,靠近外围以少对公共人行流线的影响。公共流线围绕用地中心形成网络,各地块垂直方向的联系与水平的联系交织成立体的人行交通系统。
立体景观
地面层做为档案中心与社会交通衔接的基本界面,四通八达的步行网络环绕于用地内各个功能组团之间,形成建筑群体的内部环境及景观与周边环境及景观的连续性,步道与景观设计相结合在用地中心区形成了庭园景观,缝合了原本被城市道路分隔开的四个地块,并渲染出具有内聚气氛的户外环境。
景观设计根据各个地块具体的建筑体量关系,选取了不同的景观形态和素材:
在东北及西北地块档案内部管理与对外服务之间通过线型植物带相隔离,使它们既相对分开又紧密相连;
在东南地块形成了围合的内庭院,将工作空间凝聚起来;
方志馆储藏空间的屋顶设计成公众可以直接到达的开放观景平台,使公众有机会领略档案中心全景并眺望中心绿地、整个街区及周边环境;
西南地块通过在对外公共空间中嵌入反射水池并利用水面的反射折射创造出丰富的光影效果,形成了展览空间具有导向性的空间核心;
各个地块的群房部分有大量户外平台,在建筑与环境之间形成了更加亲密的联系。
群房上层部分形成的形体开有形状大小不等的“空中院落”,漂浮于地面的庭园景观之上,它们伴随着立体的人行交通系统共同构成了立体相连的景观图景。
设计团队:刘宏伟 张义海 孙婧祎 梁幸 高玉婷





















