关于我们
公司简介
在场成员
最新动态
工作机会
联系方式
2014
2024
东方红幼儿园主入口改造
南方学院附小综合改造 II
2023
艾儿思幼稚园 金河湾园
南方学院附小 综合改造 I
南方学院附中艺术楼改造
北京大学燕南园茶室
四合院改造
2022
东方红幼儿园 景观设计
合美湖山园 景观设计
烂缦胡同 82号共生院
艾儿思幼稚园 常青园
龙眼树下的院子
2021
艾儿思幼稚园 西湖园
百善云计算中心
融融奥森 研学基地
2020
合美紫龙府园 建筑景观
艾儿思幼稚园 梅溪湖园
艾儿思集团总部 室内空间
东城四合院改造
延庆山居
2019
霄云路八号儿童馆
艾儿思幼稚园渔人码头园
艾儿思幼稚园 苹果园
艾儿思幼稚园 海上海园
蒂美优儿童舞蹈中心
园上园 乡村民宿
2018
若蔻亲子餐厅 群星城
艾儿思幼稚园 光谷园
若蔻亲子餐厅 宜家荟聚
香溪 胡家坪遗产村落
度假南山 乌鲁木齐
百仕成办公室改造
丁香舍住宅
2017
合生霄云路八号 幼儿园
在场建筑 工作室空间设计
百里乡居二期院落改造
沙井胡同四合院改造
西店记忆-II
2016
艾儿思幼稚园 后湖园
西店记忆-I
百里乡居 大石窑客栈
罗汉石村院落改造
2015
万科 V咖啡 西安
云层办公楼
儿童岛
御贝将府幼儿园-绿院子
美吉姆总部办公室改造
杏花径住宅
2014
高新技术展览馆
慕田峪瓦厂酒店餐厅扩建
美德公园商业项目
淘乐思CBD幼儿园蓝院子
未来城景观设计
F宅
2013
物流港销售中心
淘乐思国际小学
万科幸福系体验馆
鹰之巢住宅
淘乐思儿童早教机构
田仙峪果园住宅一
2012
华筑工程设计公司室内
艾涂图儿童美术中心
御贝国际SPA主题会所
田仙峪果园游客中心
国学胡同四合院翻扩建
儿童农庄
宋庄会馆改造
2011
莲园俱乐部
吴门烟雨
金海岸购物广场
田仙峪果园联排住宿
慕田峪瓦厂酒店扩建
2010
淘乐思果园幼儿园红院子
鲩子湖城市综合体
红石画廊
鄂尔多斯 20+10
2009
凤凰山峰顶建筑
白米仓胡同四合院改造
2008
世博会万科馆
平台上的别墅
深圳市档案中心
美吉姆国际儿童教育中心
2007
西四新北街概念设计
车场上的城市
零柒大声展
2006
通州物流基地办公楼
淘乐思幼儿园 当代园
2005
通州规划局办公楼改造
高新区企业城规划
器物图形
2013
莲园长凳
骑士烟灰缸
莲园V房客户端界面
写作翻译
2019
乡村建筑遗产与再利用
2014
建筑师在做什么
2013
长城脚下的瓦厂
消隐的街角
2012
建筑奖的时间维度
未竟中国
2011
勒 • 柯布西耶的细部设计
2010
CCTV 之歌
2009
似非而是的对称:导读
似非而是的对称
中国当代建筑关键词
建筑的孤寂
场所的低语
2008
中国建造的现实感
山亭夏日
我的建筑教育
城市公共空间的“私有化”
2007
貌似神离的“复制”
2006
灰色的天空
2003
都市漫游
一一宅
2002
赞美物质
空间概念设计
2014
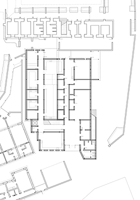
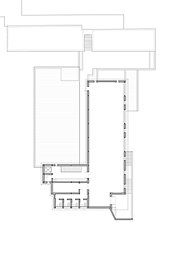
慕田峪瓦厂酒店餐厅扩建
慕田峪瓦厂酒店餐厅扩建
建成时间:2014年5月
建筑面积:838 平方米
项目地点:北京市怀柔区
项目委托:
慕田峪瓦厂酒店
项目设计:萨洋与在场建筑合作设计
设计团队:钟文凯 张鹏 付浩然