白米仓胡同四合院改造
建成时间:2010年5月
院落面积:291 平方米
地上建筑面积:230 平方米
地下建筑面积:126 平方米
项目地点:北京市东城区
项目委托:私人
设计团队:钟文凯 徐千禾 陈炜 曾旭 杨扬
合作单位:北京兴中兴建筑设计事务所
摄影图片:在场建筑, Imre Toth
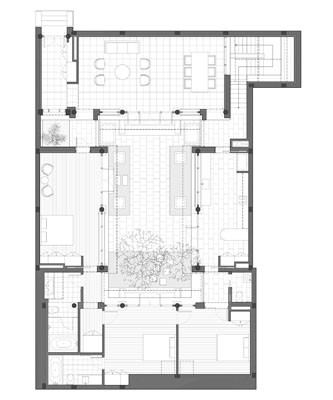
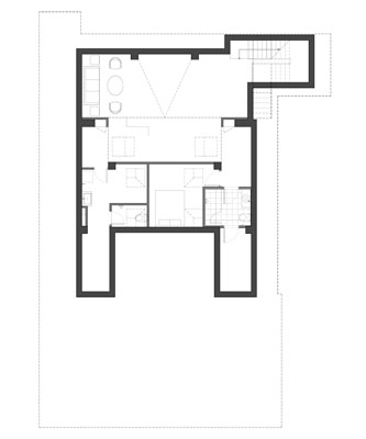
四合院位于北京市东城区白米仓胡同内,面积虽然不大,空间结构却相对完整。原有建筑已相当破败且难以修复,业主决定将其推倒后重建。新建房子的地面层维持原有建筑的基底和开间布局,仍然采用中国传统建筑的木梁柱结构、灰砖墙和瓦屋顶。局部开挖的地下室采用钢筋混凝土结构,增加了使用空间。庭院内的两株枣树和一株香椿树被小心地保留。
当代家居生活的需要决定了这一四合院改造项目在空间、结构、技术和审美上都必然是传统与现代元素相结合。位于西北角的入口门廊正对着天窗下的小院。作为四合院正厅的北房是起居室和餐厅。主卧室被安排在西厢房,以获得早晨的阳光。与之相对的东厢房成为了厨房,爱好烹饪的主人可以在这里享受傍晚的阳光。南房通常不见阳光,但由于在朝南的瓦屋顶上设置了天窗,阳光穿过椽子之间的空隙倾泻而入,使次卧室和书房变得更加明亮。卫生间集中在房子的西南角,与它们在传统四合院里的位置一致。与传统四合院不同的是,南、北房及东、西厢房之间以金属/玻璃屋顶的过道串连在一起,形成连续的环形室内空间——四合院里的生活围绕着中间的庭院展开。庭院内的一组六个小天窗以及东北角楼梯间上方的大天窗给地下的家庭活动室和辅助用房带入了充足的自然光线。
室内空间以暴露的原色木结构为特色,配以简洁的白色墙面,地面则根据不同房间的特点分别选用金砖、黑石板、木地板、瓷砖、水泥自流平等多种材质。空调、新风、地暖以及太阳能热水系统的引入提供了现代生活的舒适性。为了改善传统建筑构造的物理性能,外墙和屋顶增加了保温层,并且选用带双层中空玻璃的断桥铝合金门窗取代传统木门窗。
建成时间:2010年5月
院落面积:291 平方米
地上建筑面积:230 平方米
地下建筑面积:126 平方米
项目地点:北京市东城区
项目委托:私人
设计团队:钟文凯 徐千禾 陈炜 曾旭 杨扬
合作单位:北京兴中兴建筑设计事务所
摄影图片:在场建筑, Imre Toth
四合院位于北京市东城区白米仓胡同内,面积虽然不大,空间结构却相对完整。原有建筑已相当破败且难以修复,业主决定将其推倒后重建。新建房子的地面层维持原有建筑的基底和开间布局,仍然采用中国传统建筑的木梁柱结构、灰砖墙和瓦屋顶。局部开挖的地下室采用钢筋混凝土结构,增加了使用空间。庭院内的两株枣树和一株香椿树被小心地保留。
当代家居生活的需要决定了这一四合院改造项目在空间、结构、技术和审美上都必然是传统与现代元素相结合。位于西北角的入口门廊正对着天窗下的小院。作为四合院正厅的北房是起居室和餐厅。主卧室被安排在西厢房,以获得早晨的阳光。与之相对的东厢房成为了厨房,爱好烹饪的主人可以在这里享受傍晚的阳光。南房通常不见阳光,但由于在朝南的瓦屋顶上设置了天窗,阳光穿过椽子之间的空隙倾泻而入,使次卧室和书房变得更加明亮。卫生间集中在房子的西南角,与它们在传统四合院里的位置一致。与传统四合院不同的是,南、北房及东、西厢房之间以金属/玻璃屋顶的过道串连在一起,形成连续的环形室内空间——四合院里的生活围绕着中间的庭院展开。庭院内的一组六个小天窗以及东北角楼梯间上方的大天窗给地下的家庭活动室和辅助用房带入了充足的自然光线。
室内空间以暴露的原色木结构为特色,配以简洁的白色墙面,地面则根据不同房间的特点分别选用金砖、黑石板、木地板、瓷砖、水泥自流平等多种材质。空调、新风、地暖以及太阳能热水系统的引入提供了现代生活的舒适性。为了改善传统建筑构造的物理性能,外墙和屋顶增加了保温层,并且选用带双层中空玻璃的断桥铝合金门窗取代传统木门窗。

































