项目委托:北京淘乐思幼教机构
建设地点:北京
设计内容:建筑改造 / 室内 / 景观
面积规模:3500 平方米
设计时间:2014
建成时间:2015
建筑设计: HW Studio / 在场建筑
刘宏伟
设计团队: 张弘 付浩然 马梁程 杨辉勇 杨易欣 张利方
结构设计: n/a
机电设计: n/a
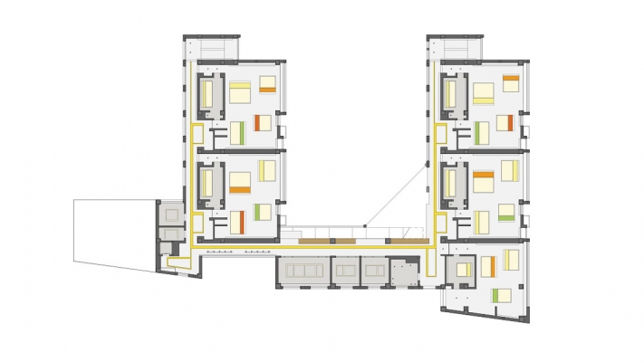
原始的幼儿园平面布局为南北两排班级教室,通过走廊连接成向东开口的半围合形。改造前的主要负面评价是室内空间封闭混杂,户外活动场地局促单调,对于儿童活动的支持匮乏消极。改造设计的任务聚焦在重新组织原有建筑室内外空间的关系,使用尽量朴素低廉的材料和构造提升空间的质量和可玩度。可玩的意思是从儿童的视角来理解,建筑本身有趣,激发想像力,鼓励孩子们自己去玩耍。
从整理室内外空间水平及垂直联系入手,对原有公共空间的脉络通过打通、连接、附加等手段使其更加联通、完整,赋予流线更多的选择和冗余度。公共空间在基本的交通功能之外,转变为儿童的游戏场所。激活外围的通道,把零散的户外空间串联在一起,室内外空间相互嵌套缠绕起来,原本孤立的中心庭院变得四通八达。地面层全部用于公共活动,除结构和必要的墙体外尽量打开室内外空间的边界。玻璃钢隔栅呵护下的户外空间构成了建筑最外圈层的景观环境,把原建筑的半围合形平面补全为完整的环形,嵌入游戏,教学和景观设施。建筑西侧的户外楼梯和栈桥从地面连接到二、三层室内走廊并延伸到屋顶运动场,帮助室内外形成更多的路径回路。
三面围合的中心庭院朝东开放,三层落地的玻璃幕墙意味着室内通高空间和中心庭院二者密不可分。这种状态给设计创造了一个想象的空间,被发展成音乐厅一般的场景,三个楼层走廊外侧的木质透光墙作为光线的媒介,赋予了这个场景的表演性。庭院和走廊对应于舞台和观众席,光线条件变化,二者的角色也会互换。中心庭院亦因此真正实现了作为中心的意义。
蓝院子的设计可以归结为一个简单的愿望:还给生活在其中的孩子们一小片纯净的空间,特别适合游戏,角角落落之间,不时发现一些散布其间的有趣的东西。


















































